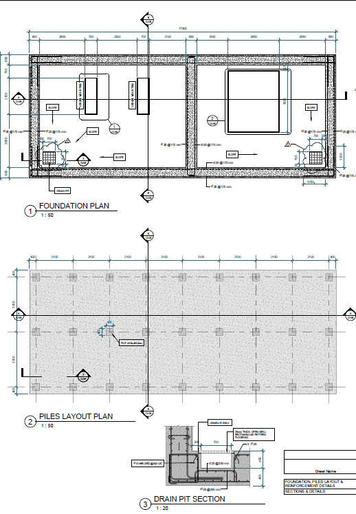
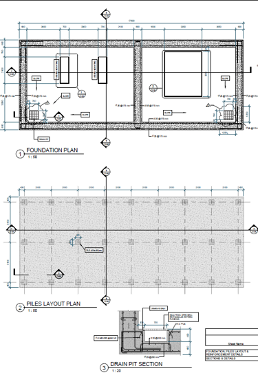
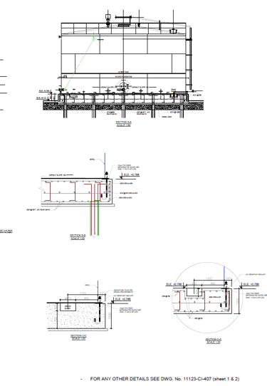
Design of civil facilities for a 48-inch crude-oil pipeline:
covering the analysis and design of scraper traps, vessel concrete pits, and pipe supports—optimized for extremely soft, problematic soils.
Scope includes detailed pile design, evaluation of negative skin friction, pipe load testing, and lateral pile load testing.




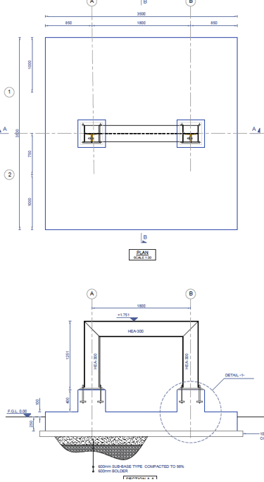
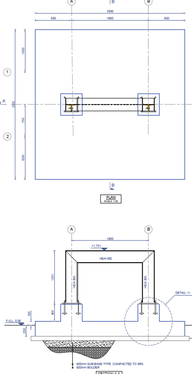
1- Pipe Supports Design
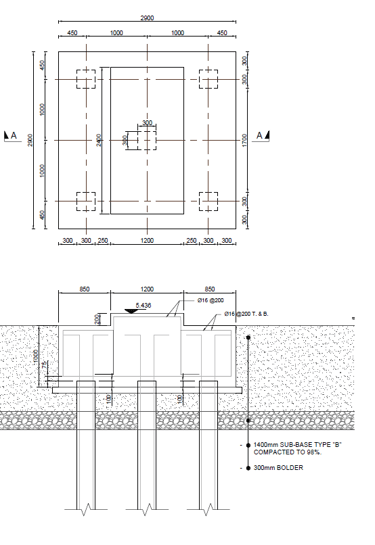
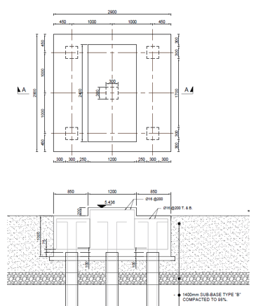
2- Valve Supports Design








2- Slope Tank Pit







































